Notre cuisiniste est intervenu à Paris 16 pour l'aménagement complet de cette cuisine d'angle


Quels aménagements ont été faits pour cette cuisine dans le 16ᵉ arrondissement de Paris ?
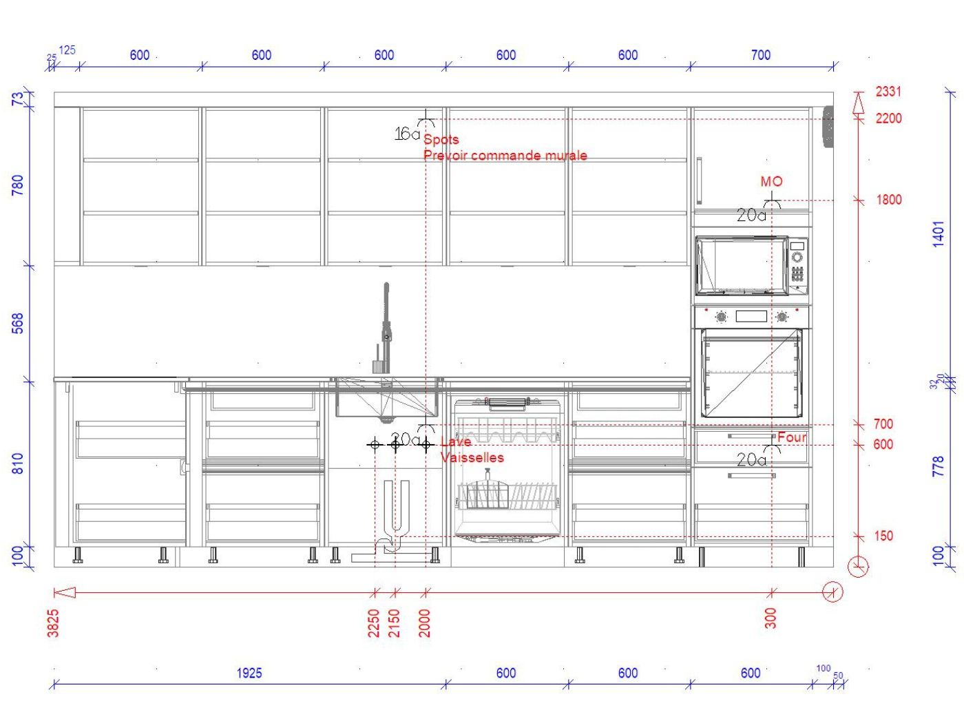
Dans l'objectif d'apporter plus de luminosité à la cuisine, cette laque mat blanche de haute qualité crée un style épuré.
Dans cette lignée, nous avons opté pour une cuisine sans poignées blanche et d'un plan de travail en quartz blanc, à haute résistance et durabilité.
La crédence en carrelage Zellig coloris orange pâle, apporte une touche de personnalité urbaine. La cuve sous plan, et la plaque à induction avec hotte au milieu, sont intégrées de manière invisible aux meubles.
Le challenge par notre cuisiniste pour cuisine semi-fermée à Paris 16 :
Initialement, la cuisine était entièrement fermée. Toutefois, la cliente souhaitait créer une continuité dans son appartement et lier son espace cuisine au salon sans opter pour une cuisine 100% ouverte.
Pour répondre à cette demande, nous avons créé une grande ouverture en remplacement de la porte afin de donner une perspective à cette cuisine semi-ouverte.
Le résultat
Une cuisine spacieuse, épurée, optimisée et ouverte sur la pièce de vie de l'appartement.







